Ммм, чи хтось пече печиво?
Політика cookies
Zadzwoń do Nas
Запитайте про акцію
Napisz do Nas

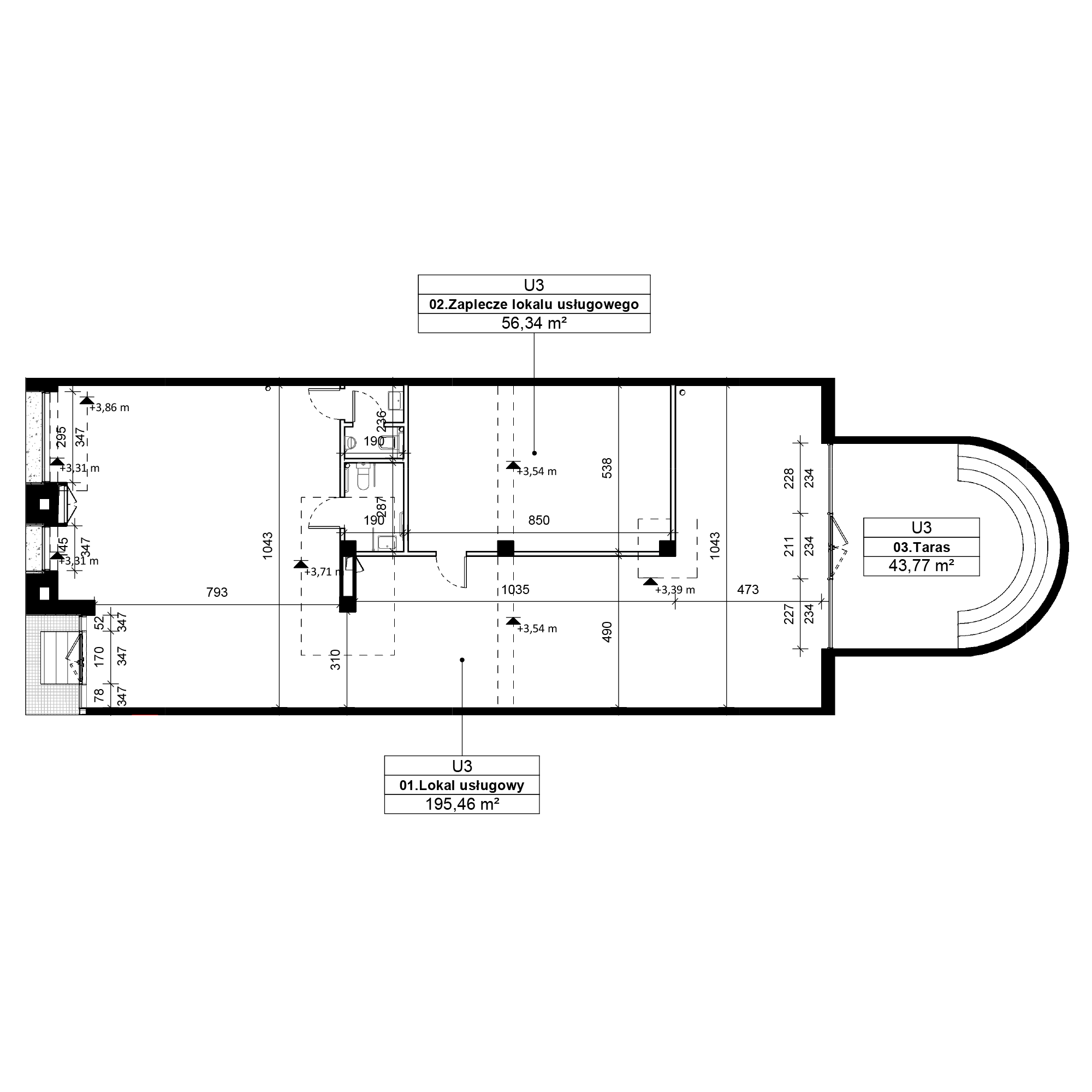
Комерційні приміщення U3

Список приміщень
Вільних приміщень 
1 / 1
Epika Jeżyce Poznań mieszkanie deweloperskie na  parterze z 2 pokojami
U3
Поверх 0
Площа 251.80m2
4 028 800 zł netto
16 000 zł netto/m2
доступні
Запитати про приміщення Завантажити 2D плани поверхів